HD رافعة كهربائية ذات العارضة الواحدة ذات العارضة الواحدة HD

HD رافعة كهربائية ذات العارضة الواحدة ذات العارضة الواحدة HD

الرافعة الجسرية ذات العارضة الواحدة أوروبية هي عبارة عن آلات رفع مدمجة مصممة وتصنع وفقا لمعيار FEM و DIN ، والتي تتميز بالتكنولوجيا المتقدمة والتصميم الجميل. تنقسم إلى النوع العام ونوع التعليق ، وتدعم استخدام رافعة كهربائية قياسية أوروبية ، ومناسبة لمعالجة مواد الورش والمخازن ، وتجميع أجزاء كبيرة الدقة وأماكن أخرى.
الدردشة الآن

تفاصيل المنتج

HD رافعة كهربائية ذات العارضة الواحدة ذات العارضة الواحدة HD

وصف مختصر:

الرافعة الجسرية ذات العارضة الواحدة أوروبية هي عبارة عن آلات رفع مدمجة مصممة وتصنع وفقا لمعيار FEM و DIN ، والتي تتميز بالتكنولوجيا المتقدمة والتصميم الجميل. تنقسم إلى النوع العام ونوع التعليق ، وتدعم استخدام رافعة كهربائية قياسية أوروبية ، ومناسبة لمعالجة مواد الورش والمخازن ، وتجميع أجزاء كبيرة الدقة وأماكن أخرى.


image.png


يمكن أن تستخدم على نطاق واسع في تصنيع الآلات ، المعادن ، البترول ، التحريك ، الميناء ، السكك الحديدية ، الطيران المدني ، الغذاء ، صناعة الورق ، البناء ، ورشة صناعة الإلكترونيات ، المستودعات وغيرها من حالات التعامل مع المواد ، esp. تطبق على التعامل مع المواد التي تحتاج إلى تحديد المواقع بدقة ، ومكونات كبيرة وضع التجمع الدقيق.


Single-girder Overhead Crane.png

صور مفصلة:

Single-girder Overhead Crane.png

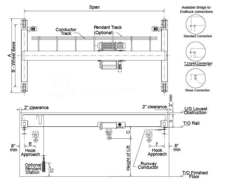
رسم سكتش:

Single-girder Overhead Crane.png

المعايير الفنية:


امتداد

م

7.5

10.5

13.5

16.5

19.5

22.5

25.5

سعة

تي

1 ~ 12.5t

الوزن الكلي

كلغ

1781 ~ 12086

وزن العربة

كلغ

405 ~ 740

ماكس. تحميل عجلة

KN

13.5 ~ 90.94

السكك الحديدية السفر

P24 P43 ~

سرعة الرفع

م / دقيقة

0.8 / 5

0.8 / 5

0.8 / 5

0.8 / 5

0.8 / 5

0.8 / 5

0.8 / 5

ارتفاع الرفع

م

≥ 6

≥ 6

≥ 6

≥ 6

≥ 6

≥ 6

≥ 6

مجموع قوة المحرك

كيلووات

4.31

4.31

4.31

4.31

4.67

4.67

4.67

سرعة الرافعة

م / دقيقة

3-30

3-30

3-30

3-30

3-30

3-30

3-30

سرعة العربة

م / دقيقة

2-20

2-20

2-20

2-20

2-20

2-20

2-20

واجب العمل

M5 / A5



包装运输.jpg

التحقيق